T3
Vivienda unifamiliar aislada
Lugar:
TEULADA (ALICANTE)
Promotor:
PIEDRAS Y OLIVOS SL
Fecha Proyecto:
2018
Fecha Finalización de obra:
2020
Superficie de Parcela:
800m2
Superficie Construida:
320m2







Distribución
El proyecto se desarrolla con una voluntad de lectura rotunda, configurándose un volumen formado por un conjunto de bandejas que se obren al Sur, compacto y unitario. Con una clara apertura hacia el mar, destaca el fajón inclinado de fachada Sur, marcando la clara direccionalidad del volumen en su apertura al Mar.
En definitiva, se trata de un volumen blanco rotundo con bandejas que se abren al Mar, y cosido verticalmente por una escalera que articula todo el programa de la vivienda.
Concepción volumétrica. Forma.
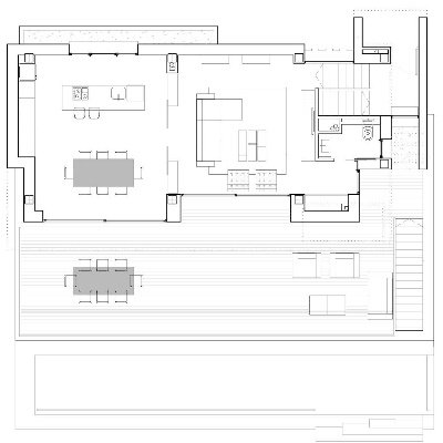
La vivienda se organiza funcionalmente por niveles, distribuyendo la zona de día en la planta superior (con el fin de disfrutar desde esta zona de las mejores vistas) y la zona de noche en la planta inferior. Desde la calle Benissadevi se accede peatonalmente al espacio exterior que nos conduce al hall de la vivienda, situado en un nivel intermedio entre la planta baja y la planta primera, coincidente con el descansillo de la escalera interior que conecta las tres plantas.
Por plantas el programa es:
– Planta Sótano: cuarto de instalaciones, distribuidor, trastero, lavandería y aseo.
– Planta Baja: 2 dormitorios con baño y vestidor propios y 2 dormitorios con baño compartido. Todos los dormitorios tienen salida a una terraza exterior con vistas al mar.
– Nivel intermedio: Hall de acceso.
– Planta Primera: salón-comedor con cocina abierta y aseo. Toda la planta tiene salida a una terraza exterior con vistas al mar.