Calalga
Vivienda unifamiliar aislada
Lugar:
CALPE (ALICANTE)
Promotor:
Privado
Fecha Proyecto:
2017
Fecha Finalización de obra:
2019
Superficie de Parcela:
540m2
Superficie Construida:
250m2




Distribución
El proyecto se desarrolla con una voluntad de lectura rotunda, configurándose un volumen compacto y unitario. Con una clara apertura hacia el mar, el volumen se abre a la orientación Sureste. En el resto de fachadas, las aperturas son mucho más controladas, predominando la masicidad del volumen. Se destaca la presencia de una fisura que recorre el edificio en su fachada Noreste, que junto con otros huecos longitudinales, permiten resolver su iluminación y ventilación sin recurrir a pequeñas y múltiples ventanitas individuales, huecos de pequeña escala que sin duda mermarían la rotundidad volumétrica que se pretende alcanzar. También se destaca el leve giro de la fachada de los dormitorios en planta baja respecto de la fachada de la zona de día en Planta Primera. Este giro permite crear un voladizo para control solar de estos espacios, además de un leve gesto para orientar las vistas sorteando los obstáculos que suponen las casas colindantes. En definitiva, se trata de un volumen puro, compacto, blanco, que mira al mar.
Concepción volumétrica. Forma.
La vivienda se organiza funcionalmente en dos bandas paralelas:
-La banda de espacios servidos (dormitorios, salón-comedor) se orienta al Sureste, con vistas al mar.
-La banda de servicios (hall, escalera, cocina, baño, aseo, galería) se orienta al Noroeste, con vistas al espacio de terraza con piscina interior.
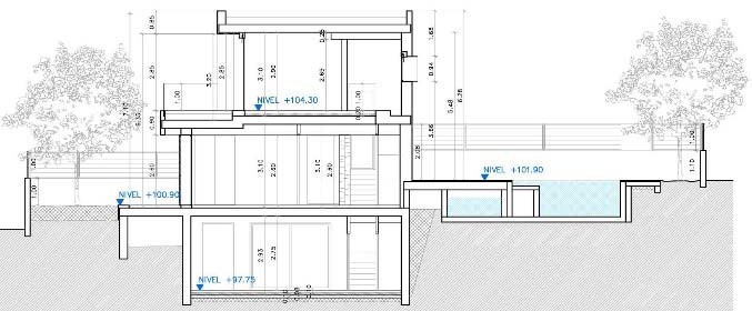
Desde la calle de acceso situada al Oeste (Nivel +101’80m), se accede al espacio exterior principal de la vivienda, la Terraza con Piscina. Próximo al acceso a la parcela, tenemos el acceso al hall de la vivienda, en la fachada Noroeste. Desde el hall se accede a una escalera que permite subir a la Planta Primera, donde se encuentra la zona de día de la vivienda, o bajar a la Planta Baja, la zona de noche, y a la planta sótano. Por tanto, la vivienda se desarrolla en tres plantas articuladas por una escalera interior.
Por plantas el programa es:
– Planta Intermedia de acceso: Hall de entrada con acceso a la escalera de comunicación de las diferentes plantas.
– Planta Primera: Espacio unitario de Salón-Comedor y Cocina abierta.
– Planta Baja: 4 dormitorios, baño, aseo y galería. Todos los dormitorios tienen salida a una terraza común en el jardín privado a cota +100’55m.
– Planta sótano: 2 salas diáfanas y un baño, con iluminación y ventilación a través de dos ventanas altas en la fachada Noreste y de una puerta acristalada que se abre al patio interior previsto en la fachada Suroeste.