Garduix
Vivienda unifamiliar aislada
Lugar:
CALPE (ALICANTE)
Promotor:
Bernardo perles Promociones y Construcciones SL
Fecha Proyecto:
2018
Fecha Finalización de obra:
2020
Superficie de Parcela:
980m2
Superficie Construida:
380m2





Distribución
El proyecto se desarrolla con una voluntad de lectura volumétrica rotunda y unitaria.
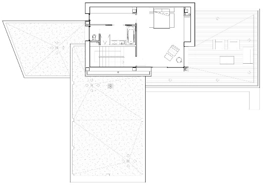
Partiendo de esta idea de continuidad, el edificio se entiende como una “lámina estructural blanca” que se pliega sobre sí misma y se retuerce, configurando una estructura con un esquema en “L”, generando diferentes espacios públicos, semipúblicos y privados en función de la posición y orientación de cada uno de ellos. Sobre ésta, se apoya un volumen quebrado, que contiene el dormitorio principal y que permite disfrutar de las mejores vistas.
Concepción volumétrica. Forma
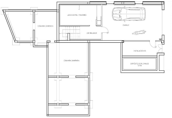
La vivienda se organiza mediante un esquema aproximado en “L”. El ala situada junto al linde Norte de la parcela, donde se distribuye la zona de día. El ala situada junto al linde oeste cuenta con una sola planta y contiene parte del programa de la zona de noche. En el punto de intersección entre las dos alas de la vivienda se sitúa un tercer volumen, en planta primera, que contiene el dormitorio principal. La planta sótano parte de la huella del edificio. Se destina a garaje y zonas técnicas. Esta estructura permite organizar de forma clara y sencilla el programa de necesidades interno sin interferencias de circulaciones entre las distintas zonas de día y noche.
Por plantas el programa es:
– Planta Sótano: cuarto de instalaciones, garaje, distribuidor y lavandería.
– Planta Baja: 3 dormitorios, 2 baños, hall de acceso y salón-comedor-cocina.
– Planta Primera: Dormitorio principal en suite.