Buenavista 1
Vivienda unifamiliar aislada
Lugar:
CALPE (ALICANTE)
Promotor:
Bernardo perles Promociones y Construcciones SL
Fecha Proyecto:
2018
Fecha Finalización de obra:
-
Superficie de Parcela:
875m2
Superficie Construida:
240m2




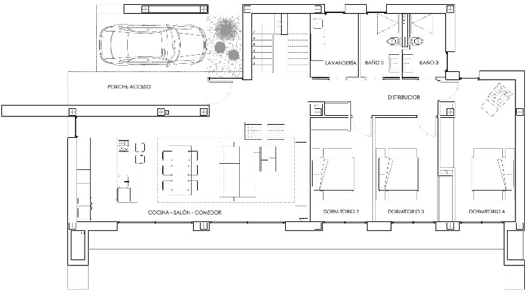
Distribución
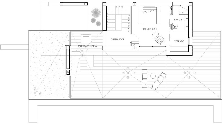
Partiendo de esta idea de continuidad, el edificio se entiende como una macla entre dos volúmenes, el primero con una marcada horizontalidad contiene la mayor parte del programa en planta baja, compacto en tres de sus lados y muy abierto en la orientación sur. El segundo, creciendo por detrás del primero, configura una barrera en la fachada norte que protege de la cercanía de los vecinos y de las condiciones climáticas de esta orientación, se eleva y se apoya sobre la cubierta de aquel, configurando, en la fachada sur, el dormitorio principal conectado con una amplia terraza y, en el lado oeste, se genera un espacio exterior, a doble altura, que marca el acceso a la vivienda y delimita la zona de aparcamiento.
Volumen
La vivienda se organiza mediante un esquema lineal, de forma que todas las estancias nobles de la vivienda se orientan al sur, buscando el adecuado soleamiento y las vistas sobre el peñón de Ifach.
La zona de servicios, constituida por los baños y lavandería se organizan en la fachada norte, actuando como protección respecto de los vecinos colindantes y de la orientación más desfavorable.
El mismo volumen que contiene las zonas de servicio en planta baja se expande hacia el sur en planta primera generando el dormitorio principal y hacia el oeste configurando el acceso a la vivienda a través de un espacio exterior cubierto a doble altura.
Esta estructura permite organizar de forma clara y sencilla el programa de necesidades interno sin interferencias de circulaciones entre las distintas zonas de día y noche.
Por plantas el programa es:
– Planta Baja: hall de acceso, salón-comedor-cocina, 3 dormitorios, 2 baños y lavandería.
– Planta Primera: Dormitorio principal en suite, con baño y vestidor.