T1
Vivienda unifamiliar aislada
Lugar:
TEULADA (ALICANTE)
Promotor:
PIEDRAS Y OLIVOS SL
Fecha Proyecto:
2016
Fecha Finalización de obra:
-
Superficie de Parcela:
1370m2
Superficie Construida:
578m2




Concepción volumétrica. Forma.
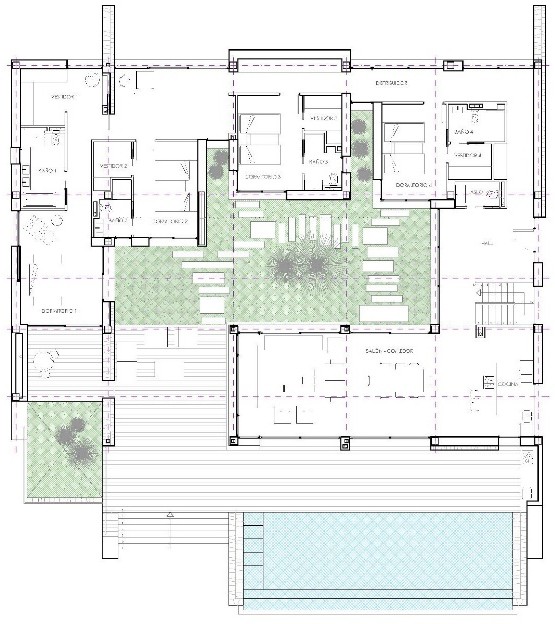
La vivienda se organiza funcionalmente alrededor del patio, que se configura como el corazón de la vivienda, al que vuelcan las estancias principales en Planta Baja. Los dormitorios se conciben como cajas independientes que se escalonan en torno al patio y participan de las vistas del Mar a través de la zona de día (pieza muy diáfana para permitir dichas vistas). Desde la calle Azagador de La Torre (Nivel +95’75m, situada al Este), se accede peatonalmente al espacio exterior que nos conduce al hall de la vivienda. Desde el hall, una escalera da acceso a la Planta Sótano. Por tanto, la vivienda se desarrolla en dos plantas articuladas por una escalera interior. Por plantas el programa es:
– Planta Sótano: garaje, cuarto de instalaciones, gimnasio con sauna y piscina interior climatizada, sala de uso polivalente, distribuidor, 2 baños, trastero y lavandería.
– Planta Baja: hall, salón-comedor con cocina abierta y salida a galería exterior, distribuidor, aseo, 4 dormitorios con baño y vestidor propios. Todos los dormitorios tienen salida al patio ajardinado, espacio exterior principal que articula todas las estancias de la vivienda. La pieza de día de salóncomedor-cocina se configura como bisagra de conexión del patio ajardinado de la vivienda con
la terraza principal de la vivienda, donde se sitúa la piscina exterior con vistas al mar.
Distribución
El proyecto se desarrolla con una voluntad de lectura rotunda, configurándose un volumen compacto y unitario. Con una clara apertura hacia el Mar, el volumen se abre a la orientación Sur.
Destacamos la presencia de un patio ajardinado central como el corazón de la vivienda, como el elemento que articula las estancias principales en torno a él. Todas las estancias y espacios de
circulación se abren al patio, cobrando gran relevancia desde cualquier punto de la casa. También se destaca el fajón inclinado de fachada Sur, marcando la clara direccionalidad del
volumen en su apertura al Mar.
En definitiva, se trata de un volumen puro, compacto, blanco, que mira al mar.